Popis záměru

Řešený objekt se nachází na okraji zastavěné části obce Vanovice po levé straně silnice u výjezdu na Drválovice.

Stavba bude realizována v místě, kde byla před několika léty zahájena přístavba objektu sokolovny. Po provedení části hrubé stavby (základy, zdivo 1.NP) byla stavba pozastavena a následně zcela zastavena.

Od této doby rozestavěná část chátrá a narušuje celkový dojem při příjezdu do obce.

Investor se rozhodl tento objekt rekonstruovat, provést přístavbu a nástavbu stavby a využívat ho pro volnočasové aktivity široké veřejnosti. Možnosti využití objektu rozšíří i lezecká stěna instalovaná na západní fasádě objektu. Část objektu bude sloužit jako muzeum.

Z hlediska polohy pozemku a dopravního napojení se staveniště jeví jako vhodné pro plánovanou výstavbu.

Součástí realizace stavby je úprava stávajícího fotbalového hřiště. Původní hliněný kryt včetně podkladních vrstev bude sejmut a nahrazen novým povrchem z umělého trávníku 3. generace, položeného na drenážních vrstvách.

Architektonické řešení

Sokolovna je stavba jednoduchého půdorysného tvaru L zastřešeného sedlovou střechou se štíty orientovanými na vstupní a zadní průčelí domu. Jedná se jednopodlažní objekt, který má ve vstupní části dvě podlaží.

Záměrem investora je vytvořit přístavbou příjemně působící, spíše domácké prostředí s možností využití pro volnočasové aktivity, postavené v duchu přiléhající stávající stavby – jejího hmotového i architektonického řešení a současně zajistit komfort, odpovídající dnešním požadavkům.

Stavba je navržena v provedení z klasických materiálů – pálená střešní krytina, hladká omítka s nátěrem fasádní barvou v teplých zemitých odstínech, dřevěné prvky s nátěrem lazurovacím lakem v odstínu zlatý dub.

Před vstupem do objektu bude provedena zpevněná plocha ze zámkové dlažby. Za objektem bude zbudována terasa a podium, které rozšíří možnost využití objektu v teplých letních dnech.

Samotná řešená část objektu je dvoupodlažní objekt, situovaný u západního štítu sokolovny. Je to přízemní budova se sedlovou střechou s hřebenem orientovaným kolmo ke střeše sokolovny. Plocha střechy je odlehčena sedlovým vikýřem, který vytváří ve vstupním průčelí štít. Fasáda objektu je členěna dřevěným obkladem. Bude pojata ve dvou odstínech skořicové barvy v kombinaci s keramickou režnou střešní krytinou a dřevěnými prvky v odstínu přírodní dub.

Technické řešení

Objekt je navržen v provedení tradiční zděnou technologií založený na základech stávající stavby částečně na nových základových pasech z prostého betonu. Nosné zdivo a příčky budou vyzděny z keramických tvárnic POROTHERM, stropy jsou uvažovány polomontované z keramo betonových stropních nosníků POROTHERM a stropních vložek MIAKO. Konstrukce krovu bude celodřevěná vaznicová, střešní krytinu tvoří keramické pálené tašky.

Vnější otvorové prvky (okna, dveře) jsou navrženy plastové v bílé barvě, fasáda hladká v přírodních teplých odstínech. Fasáda bude doplněna dřevěnými prvky a soklem z keramického obkladu. Vnitřní materiálové řešení bude upřesněno v dalším stupni projektové dokumentace.

Přístřešek za objektem bude tvořen dřevěnou konstrukcí, tašky jsou keramické.

Přípojky IS

Stavba neklade požadavky na nové přípojky inženýrských sítí. Všechny nové rozvody v objektu budou napojeny na rozvody přiléhající budovy sokolovny.

Grafická část
Situace

 

Vstupní pohled

 

Ostatní pohledy

 

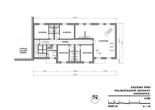
Půdorys 1.NP

 

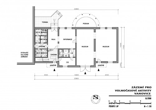
Půdorys 2.NP

 

Grafická část ke stažení

Studie – Zázemí pro volnočasové aktivity